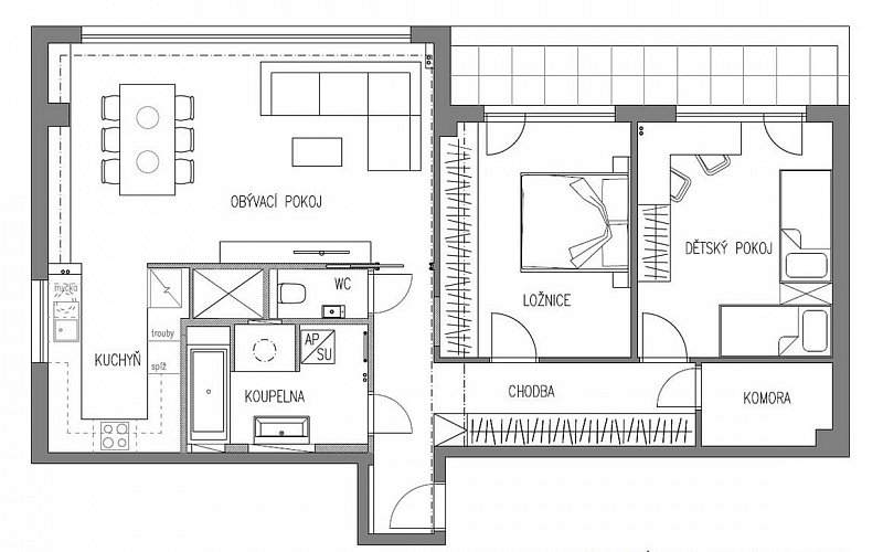
Jak propojit kuchyň s obývacím pokojem
I světlé a prostorné byty mohou mít řadu úskalí – jedním z nejčastějších je kuchyně oddělená od zbytku bytu, což je řešení, které už řadu let málokdo preferuje. Zvlášť pokud je klientem mladá rodina s dětmi, jako v případě tohoto bytu. Pak se hlavním cílem rekonstrukce stává právě propojení kuchyně s obývacím prostorem. Na něj pak mohou navázat další dispoziční úpravy.
I světlé a prostorné byty mohou mít řadu úskalí – jedním z nejčastějších je kuchyně oddělená od zbytku bytu, což je řešení, které už řadu let málokdo preferuje. Zvlášť pokud je klientem mladá rodina s dětmi, jako v případě tohoto bytu. Pak se hlavním cílem rekonstrukce stává právě propojení kuchyně s obývacím prostorem. Na něj pak mohou navázat další dispoziční úpravy.
Změna dispozice
V případě tohoto bytu jsme našli takové dispoziční řešení, které kromě spojení kuchyně s obývacím pokojem dovolilo i další zásadní změnu – zvětšení koupelny. Kuchyň jsme totiž zúžili tak, že umožnila instalaci pracovního prostoru do U po obvodu tří stěn. Čtvrtou stěnu jsme odstranili a kuchyň tak otevřeli do obývacího pokoje. O to větší prostor získala nově koupelna, což nám uvolnilo ruce pro její výhodnější dispoziční řešení.
Před rekonstrukcí:

Po rekonstrukci:

Obývací pokoj
Ústředním prvkem obývacího pokoje je rozměrný jídelní stůl 100x200cm pro šest osob, s kovovým rámem a masivní deskou. Ke stolu vybral majitel bytu krásné židle a osvětlení, které pokoj zútulňují. Vzadu je umístěna prostorná knihovna s menšími úložnými prostory. Jejich dvířka opticky rozbíjejí monotónnost policového řešení knihovny a dodávají tak pokoji na zajímavosti.
A druhé straně pokoje vzniklo místo pro relaxaci - televizor, sedací soupravu a jednoduchý stolek.
Koupelna
Zvětšená koupelna získala na prostornosti. Vešla se do ní vana i sprchový kout, velké umyvadlo i pračka se sušičkou. Koupelna je laděna do hněda s využitím velkoformátových dlaždic.

Kuchyň
Kuchyň v novém řešení poskytuje mnoho pracovního prostoru a zároveň kontakt se zbytkem bytu. Kuchyňská linka ve tvaru písmene U využívá všechny tří stěny místnosti. Prostor pod oknem je ideální pro umístění dřezu a myčky, v kratší části se nachází varné centrum a na dlouhou stěnu sousedící s koupelnou jsme zasadili vysoké skříně včetně trouby, mikrovlnky, lednice a mrazáku.

Barevnost bytu je neutrální – kombinuje podlahy z vinylu v přírodním dekoru světlého dřeva s dubovými dveřmi, stolem a dalšími prvky. Interiér doplňuje několik sytě žlutých detailů, které mu dodávají na zajímavosti a živosti. Židle, dvířka úložných prostor v knihovně či police v zádveří.

Úložné prostory jsme navrhli tak, aby zádveří zůstalo co nejprázdnější a nebránilo volnému pohybu. Hlavní úložné prostory jsme umístili do chodby, ložnice a velké komory. Také plánujete rekonstrukci? Kontaktujte nás!